Featured
Przestronne mieszkanie w historycznej kamienicy
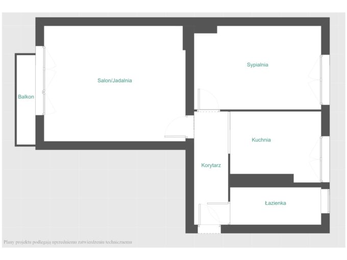
Mieszkanie w historycznej kamienicy o powierzchni 57 m2, ulokowane na…
sprzedaż
555000zł