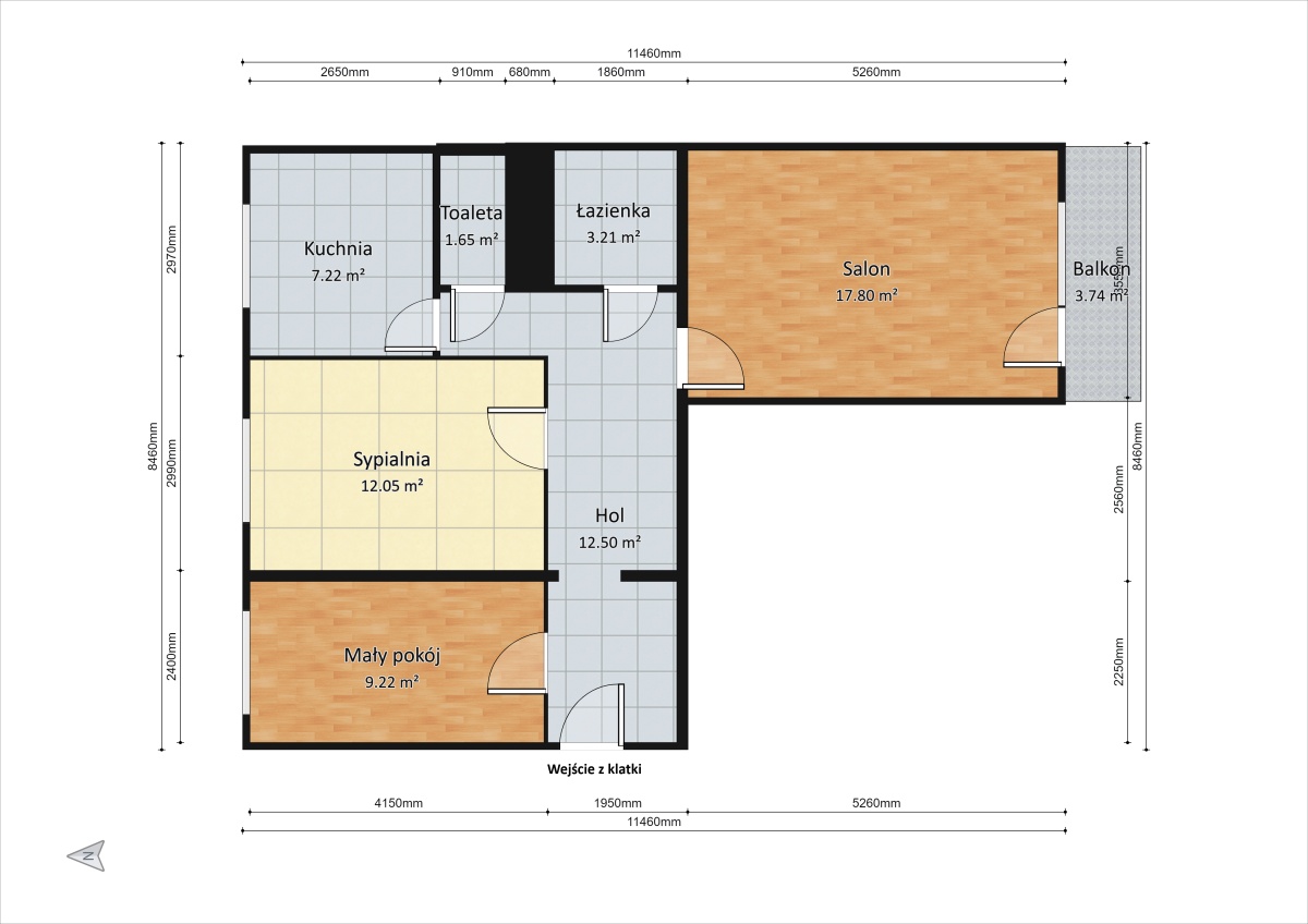
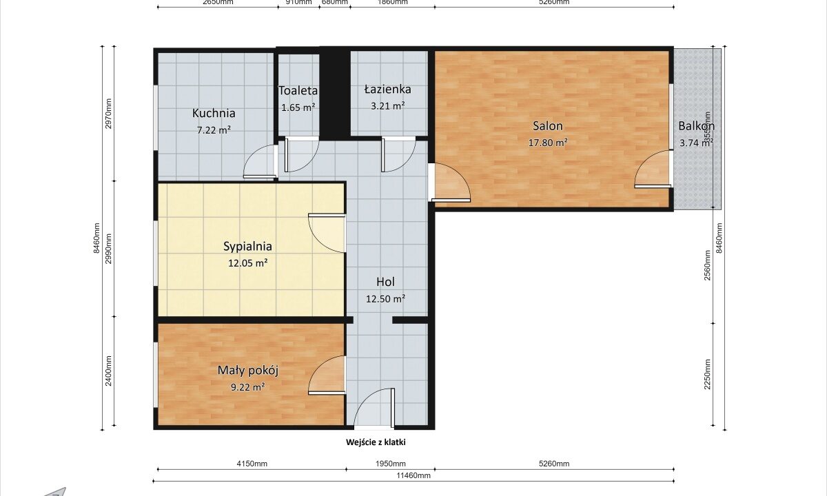
Compare Properties
Compare
You can only compare 4 properties, any new property added will replace the first one from the comparison.
Owning a home is a keystone of wealth… both financial affluence and emotional security.
Suze Orman
18 kwietnia, 2026
sobota!
addreso.pl
Login
Username
Password
Forget Password?
Login
Reset Password
Kontakt:795777131