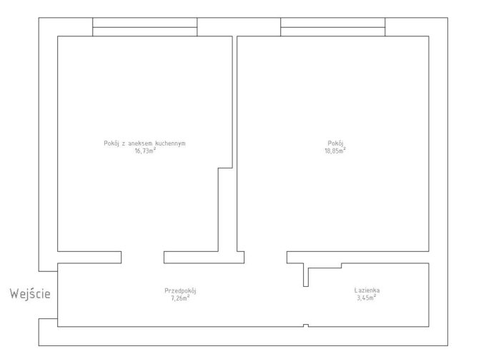
Mieszkanie o wysokim komforcie – Ursynów
Świeżo wyremontowane mieszkanie, niewymagające remontów.…
760000zł
235 do 240 Wychodząc z 498 nieruchomości
Świeżo wyremontowane mieszkanie, niewymagające remontów.…
760000zł
przez Kontakt:791139957
Mam do zaoferowania bezpośrednią sprzedaż…
1050000zł
przez Kontakt:601592289
1650000zł
przez Kontakt:502584933
Do wynajmu doskonale położona nieruchomość…
19900zł
przez Kontakt:48505550638
Do wynajmu doskonale położona nieruchomość…
39900zł
przez Kontakt:48505550638
5499999zł
przez Kontakt:48505550638
Owning a home is a keystone of wealth… both financial affluence and emotional security.
Suze Orman