Hala magazynowa Pobiedziska 3650 m2 + BIUROWIEC
Powierzchnia działki wynosi 4,0434 [ha]. Parametry hali: – szerokość zewnętrzna:…
65000zł
mazowieckie, Warszawa, Wola
wynajem
59000zł







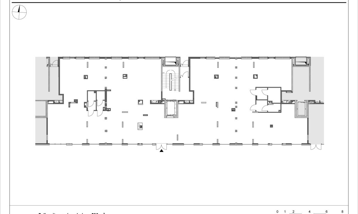
Ogłoszenie wynajmu lokalu usługowego – Warszawa, Wola, ul. Jana Kazimierza 64
Wynajmę przestronny lokal usługowy o powierzchni około 500 m², położony w dynamicznie rozwijającej się dzielnicy Warszawy – Woli, przy ul. Jana Kazimierza 64.
Cena najmu wynosi 118 zł/m² netto miesięcznie + wszelkie opłaty dodatkowe (media, eksploatacja, itp.) po stronie najemcy.
Zalety lokalizacji:
• Doskonała komunikacja – bliskość głównych arterii miasta, takich jak ul. Wolska i Aleja Prymasa Tysiąclecia, oraz łatwy dostęp do komunikacji miejskiej (autobusy, tramwaje, stacja metra, stacja kolejowa Warszawa Zachodnia w zasięgu kilku minut).
• Rozwój biznesowy Woli – okolica przyciąga nowoczesne firmy, biura i inwestycje, co zapewnia stały ruch potencjalnych klientów.
• Bliskość centrum – zaledwie kilka kilometrów od ścisłego centrum Warszawy, z szybkim dojazdem zarówno samochodem, jak i transportem publicznym.
• Sąsiedztwo osiedli mieszkaniowych – gęsto zaludniona okolica gwarantuje duży przepływ pieszych, idealny dla usług skierowanych do mieszkańców.
Atrakcyjność powierzchni:
• Duża, elastyczna przestrzeń – ok. 500 m² daje możliwość aranżacji pod różnorodne działalności, takie jak biuro, showroom, gabinety medyczne, siłownia, szkoła językowa, przedszkole, żłobek, studio kreatywne, czy sklep.
• Nowoczesny standard – lokal w budynku dostosowanym do potrzeb biznesowych, z potencjałem na indywidualne wykończenie według potrzeb najemcy.
• Uniwersalność – powierzchnia umożliwia pozostawienie mniejszych pomieszczeń lub wydzielenie większych w formie open space, co czyni lokal idealnym dla szerokiego spektrum usług.
To doskonała okazja dla przedsiębiorców poszukujących reprezentacyjnej i funkcjonalnej przestrzeni w jednej z najbardziej perspektywicznych lokalizacji Warszawy.
Zapraszam do kontaktu w celu uzyskania szczegółów i umówienia prezentacji!
Tel. 530 020 020
sprzedaz@homeinvest.pl
Powierzchnia działki wynosi 4,0434 [ha]. Parametry hali: – szerokość zewnętrzna:…
65000zł
Wynajmę ciche, słoneczne i przytulne, dwupokojowe, umeblowane mieszkanie o powierzchni…
2900zł
Owning a home is a keystone of wealth… both financial affluence and emotional security.
Suze Orman