Dom w sercu Karkonoszy oaza spokoju i przygody
Dom w sercu Karkonoszy – Twoja oaza spokoju i przygody!…
1790000zł
pomorskie, Gdańsk, Główne Miasto
sprzedaż
1008569zł







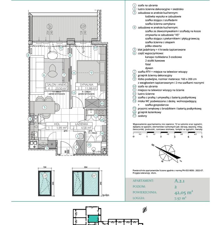
Nowoczesny, gotowy do wynajmu apartament o powierzchni 42,05 m², usytuowany na pierwszym piętrze inwestycji Remedium. Doskonały wybór dla pary lub 2–3 osób podróżujących do Gdańska służbowo lub turystycznie. Odbiór kluczy: wrzesień 2025.
Funkcjonalny rozkład obejmuje:
– salon z aneksem kuchennym i częścią wypoczynkową (23,50 m²),
– niezależną sypialnię z łóżkiem małżeńskim (11,98 m²),
– łazienkę z prysznicem typu walk-in (4,58 m²),
– hol wejściowy z zabudową (1,99 m²),
– loggię o powierzchni 7,57 m², idealną na poranną kawę lub wieczorny chill.
Apartament w standardzie „pod klucz” – w pełni umeblowany i wyposażony w sprzęt AGD. W salonie znajduje się sofa z funkcją spania, fotel, stoliki kawowe, stół z czterema krzesłami i szafka RTV. Aneks kuchenny zawiera pełną zabudowę: lodówkę, zmywarkę, płytę grzewczą, piekarnik i okap. W sypialni: łóżko 160 × 200 cm z tapicerowanym wezgłowiem, szafki nocne i szafa. W łazience: prysznic, pralka w zabudowie, podwieszane WC i szafka gospodarcza.
Styl wnętrza przyciąga oko – jasne, harmonijne kolory, stonowane detale i funkcjonalna przestrzeń, która świetnie wygląda na zdjęciach i dobrze odnajduje się w wyszukiwarkach portali najmu. To właśnie ten typ apartamentów goście najczęściej wybierają – i polecają dalej.
Do wykończenia wykorzystano certyfikowane materiały wysokiej klasy – glazurę, gres, tapety, armaturę sanitarną i stolarkę drzwiową.
Remedium zlokalizowane jest w zielonym sercu Gdańska – Aniołkach, tuż obok parku i Szpitala Uniwersyteckiego GUMed. W bliskim sąsiedztwie: Politechnika Gdańska, Uniwersytet Medyczny, a także kulturalne i gastronomiczne centrum Trójmiasta na terenach dawnej Stoczni Gdańskiej.
Zapraszamy do biura sprzedaży przy inwestycji przy ul. Smoluchowskiego 3 w Gdańsku oraz do obejrzenia apartamentu pokazowego.
Cena netto lokalu to 819 975 zł plus 23% VAT.
Jeśli zakup lokalu realizowany jest przez czynnego podatnika i przeznaczony na cele związane z prowadzeniem działalności (pod wynajem) można uzyskać zwrot całej wartości VAT.
Link do oferty dewelopera: https://www.domesta.com.pl/remedium
Dom w sercu Karkonoszy – Twoja oaza spokoju i przygody!…
1790000zł
Przedmiotem sprzedaży w ramach konkursu ofert organizowanego przez syndyka są…
152250zł
Owning a home is a keystone of wealth… both financial affluence and emotional security.
Suze Orman